Официальное опубликование правовых актов
ОФИЦИАЛЬНОЕ ОПУБЛИКОВАНИЕ
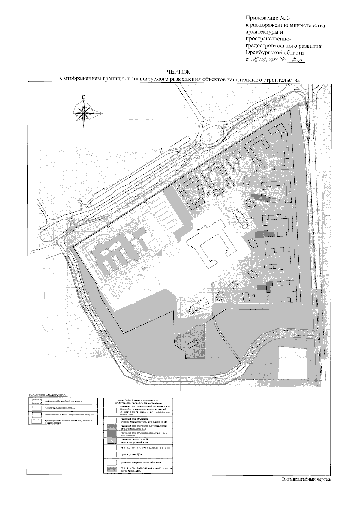
Распоряжение Министерства архитектуры и пространственно-градостроительного развития Оренбургской области от 22.04.2025 № 7-р
"Об утверждении проекта планировки территории и проекта межевания территории, ограниченной улицей Гаранькина, шоссе Загородным, перспективной магистралью районного значения, территорией городских лесов, площадью 62 га"
(Зарегистрирован 22.04.2025 № 0032/2025/02)
Номер опубликования: 5601202504250010
Дата опубликования: 25.04.2025
Страница №6 из 30:
Увеличить