Приказ Инспекции по охране объектов культурного наследия Приморского края от 25.08.2025 № 362
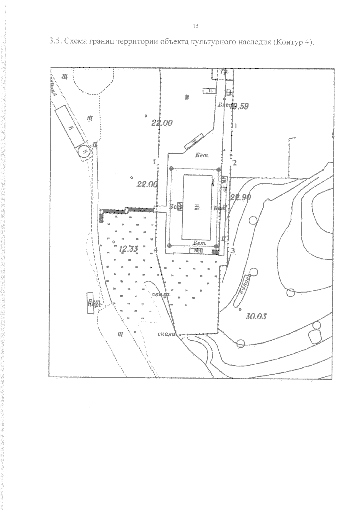
"О внесении изменений в приказ инспекции по охране объектов культурного наследия Приморского края от 9 июня 2025 года № 222 "Об утверждении границ территории выявленного объекта культурного наследия "Ансамбль застройки военного городка 35-го Восточно-Сибирского стрелкового полка", расположенного по адресу (местонахождение): Приморский край, г. Владивосток, остров Русский, полуостров Саперный, на восточном и северо-восточном берегах бухты Жданко, на мысу Мелководный (Русский остров, юго-восточная часть бухты Новик)"
(Зарегистрирован 25.08.2025 № 2452)
"О внесении изменений в приказ инспекции по охране объектов культурного наследия Приморского края от 9 июня 2025 года № 222 "Об утверждении границ территории выявленного объекта культурного наследия "Ансамбль застройки военного городка 35-го Восточно-Сибирского стрелкового полка", расположенного по адресу (местонахождение): Приморский край, г. Владивосток, остров Русский, полуостров Саперный, на восточном и северо-восточном берегах бухты Жданко, на мысу Мелководный (Русский остров, юго-восточная часть бухты Новик)"
(Зарегистрирован 25.08.2025 № 2452)
Номер опубликования: 2501202508260003
Дата опубликования:
26.08.2025
