Официальное опубликование правовых актов
ОФИЦИАЛЬНОЕ ОПУБЛИКОВАНИЕ
Приказ Министерства культуры Республики Крым от 01.10.2025 № 609-ОКН
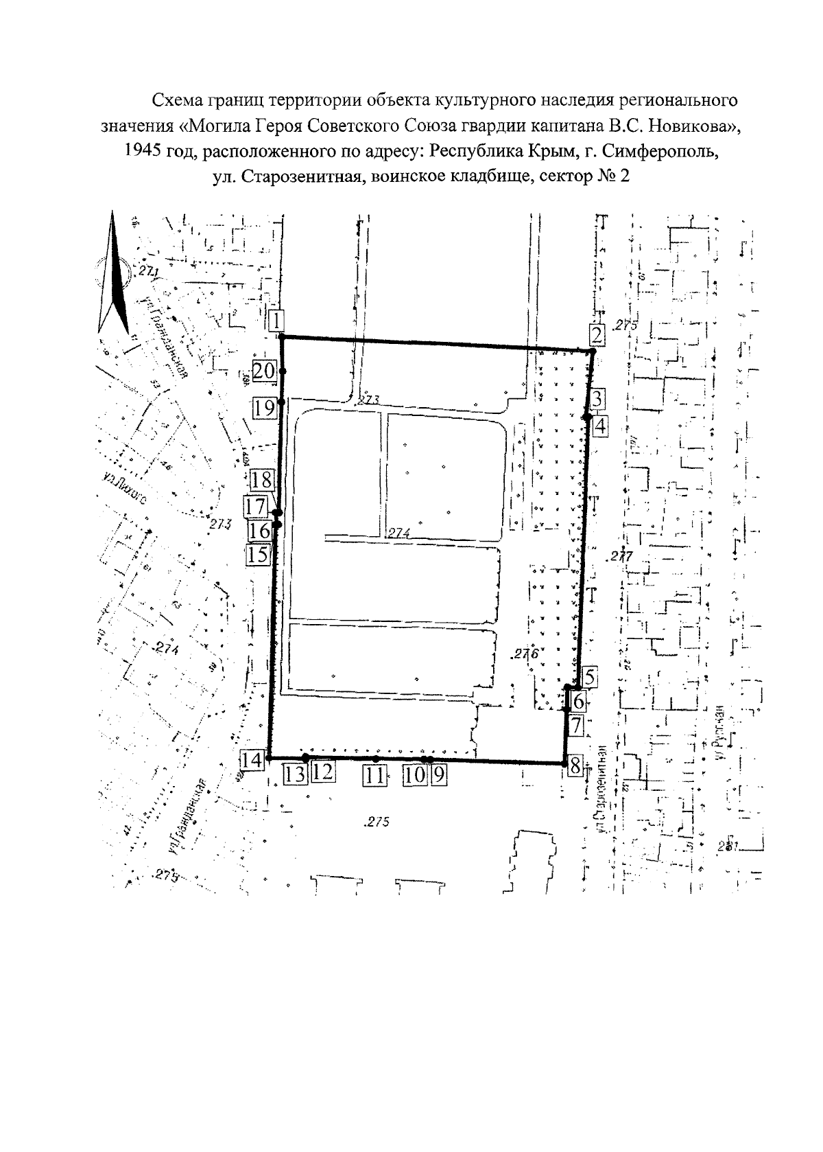
"О включении выявленного объекта культурного наследия "Могила Героя Советского Союза капитана Новикова Василия Сергеевича", расположенного по адресу: Республика Крым, г. Симферополь, ул. Старозенитная, воинское кладбище, сектор № 2, в единый государственный реестр объектов культурного наследия (памятников истории и культуры) народов Российской Федерации в качестве объекта культурного наследия регионального значения и утверждении границ территории, режимов использования земель в границах территории объекта культурного наследия регионального значения"
(Зарегистрирован 07.10.2025 № 2805)
Номер опубликования: 9101202510080011
Дата опубликования: 08.10.2025
Страница №6 из 8:
Увеличить