Официальное опубликование правовых актов
ОФИЦИАЛЬНОЕ ОПУБЛИКОВАНИЕ
Приказ Министерства культуры Республики Крым от 13.09.2021 № 447-окн
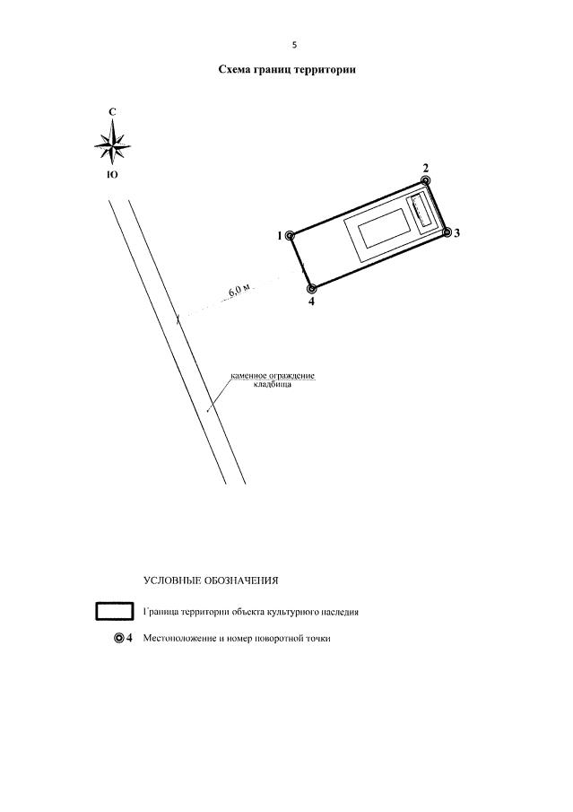
"Об утверждении границ территории, режимов использования земель в границах территории объекта культурного наследия регионального значения "Братская могила советских воинов, 1941 - 1944 годы", расположенного по адресу: Республика Крым, Сакский район, сельское поселение Суворовское, с. Победное, сельское кладбище"
Номер опубликования: 9101202109140008
Дата опубликования: 14.09.2021
Страница №4 из 5:
Увеличить