Официальное опубликование правовых актов
ОФИЦИАЛЬНОЕ ОПУБЛИКОВАНИЕ
Приказ Службы государственной охраны объектов культурного наследия Ямало-Ненецкого автономного округа от 17.08.2021 № 72
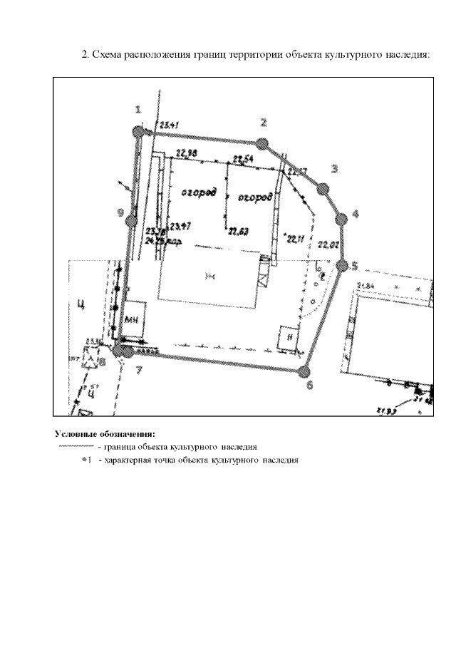
"О включении выявленного объекта культурного наследия "Двухквартирный жилой дом, связанный с жизнью и деятельностью выдающихся людей Ямала: Л.В. Лапцуя, В.Т. Подшибякина, Е.Г. Сусой" в единый государственный реестр объектов культурного наследия (памятников истории и культуры) народов Российской Федерации в качестве объекта культурного наследия регионального значения (памятник), утверждении границ его территории"
(Зарегистрирован 18.08.2021 № 337)
Номер опубликования: 8901202108190001
Дата опубликования: 19.08.2021
Страница №4 из 4:
Увеличить