Официальное опубликование правовых актов
ОФИЦИАЛЬНОЕ ОПУБЛИКОВАНИЕ
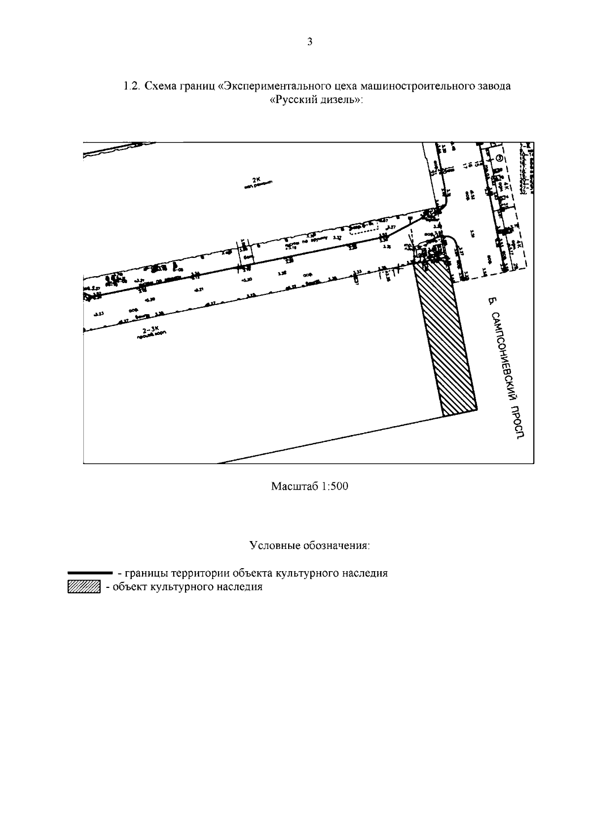
Распоряжение Комитета по государственному контролю, использованию и охране памятников истории и культуры Санкт-Петербурга от 30.11.2023 № 865-рп
"О внесении изменений в распоряжение КГИОП от 25.09.2023 № 805-рп"
(Зарегистрирован 30.11.2023 № 36275)
Номер опубликования: 7801202312070019
Дата опубликования: 07.12.2023
Страница №5 из 11:
Увеличить