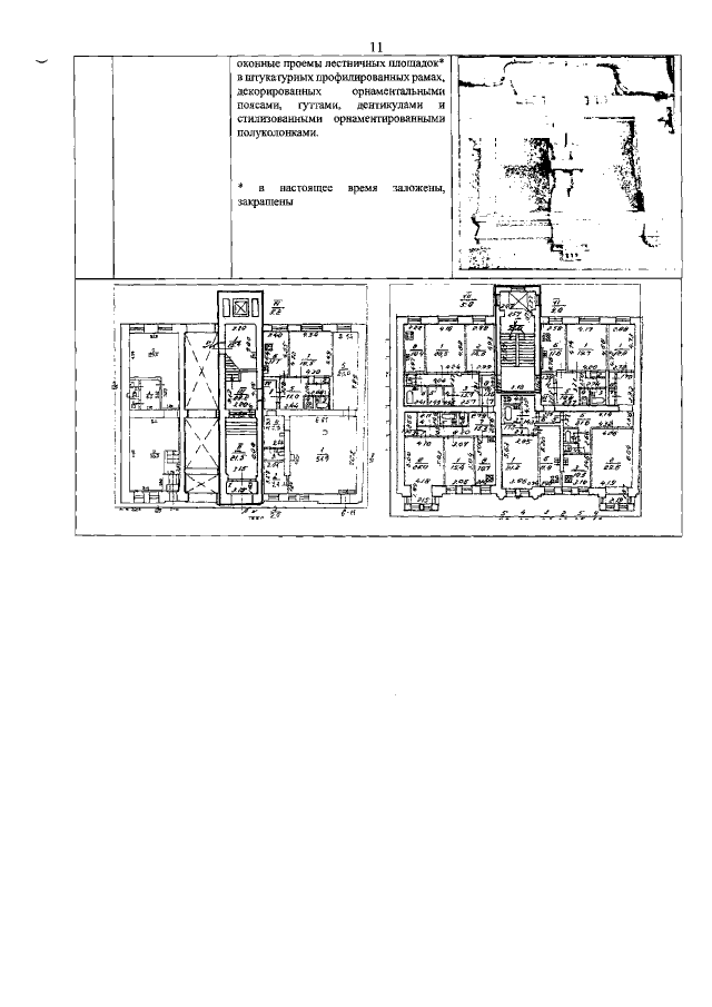
Распоряжение Комитета по государственному контролю, использованию и охране памятников истории и культуры Санкт-Петербурга от 28.01.2022 № 70-рп
"Об утверждении предмета охраны выявленного объекта культурного наследия "Дом З.М. и А.А. Зайцевых"
"Об утверждении предмета охраны выявленного объекта культурного наследия "Дом З.М. и А.А. Зайцевых"
Номер опубликования: 7801202202040037
Дата опубликования:
04.02.2022
