Официальное опубликование правовых актов
ОФИЦИАЛЬНОЕ ОПУБЛИКОВАНИЕ
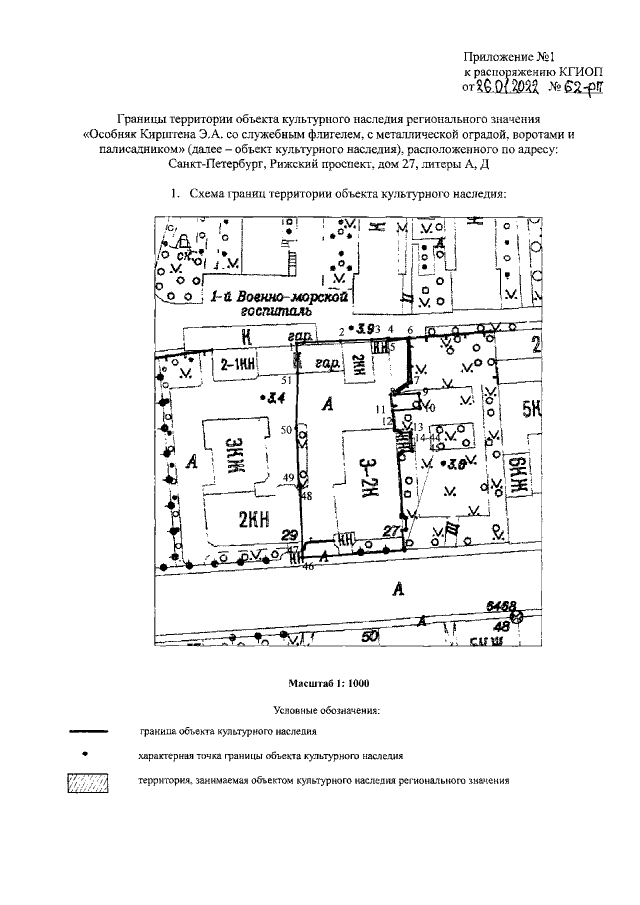
Распоряжение Комитета по государственному контролю, использованию и охране памятников истории и культуры Санкт-Петербурга от 26.01.2022 № 62-рп
"Об утверждении границ и режима использования территории объекта культурного наследия регионального значения "Особняк Кирштена Э.А. со служебным флигелем, с металлической оградой, воротами и палисадником"
Номер опубликования: 7801202202040032
Дата опубликования: 04.02.2022
Страница №3 из 8:
Увеличить