Официальное опубликование правовых актов
ОФИЦИАЛЬНОЕ ОПУБЛИКОВАНИЕ
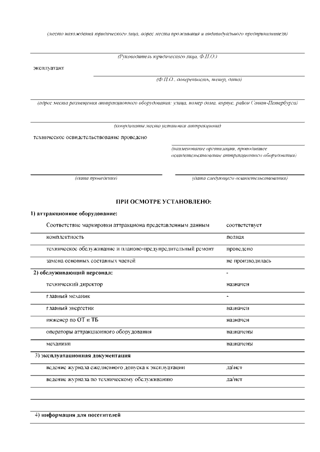
Распоряжение Государственной технической инспекции Санкт-Петербурга от 01.11.2021 № 29-р
"Об утверждении административных регламентов Гостехнадзора Санкт-Петербурга"
Номер опубликования: 7801202111100012
Дата опубликования: 10.11.2021
Страница №92 из 100:
Увеличить