Официальное опубликование правовых актов
ОФИЦИАЛЬНОЕ ОПУБЛИКОВАНИЕ
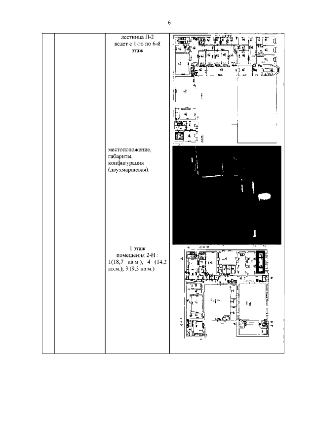
Распоряжение Комитета по государственному контролю, использованию и охране памятников истории и культуры Санкт-Петербурга от 19.10.2021 № 252-рп
"Об утверждении предмета охраны выявленного объекта культурного наследия "Манеж Половцовых"
Номер опубликования: 7801202110280010
Дата опубликования: 28.10.2021
Страница №7 из 26:
Увеличить