Официальное опубликование правовых актов
ОФИЦИАЛЬНОЕ ОПУБЛИКОВАНИЕ
Распоряжение Комитета по государственному контролю, использованию и охране памятников истории и культуры Санкт-Петербурга от 15.06.2021 № 53-рп
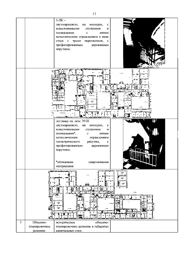
"Об утверждении предмета охраны выявленного объекта культурного наследия "Комплекс зданий Института гражданских инженеров им. императора Николая I"
Номер опубликования: 7801202106230012
Дата опубликования: 23.06.2021
Страница №12 из 19:
Увеличить