Официальное опубликование правовых актов
ОФИЦИАЛЬНОЕ ОПУБЛИКОВАНИЕ
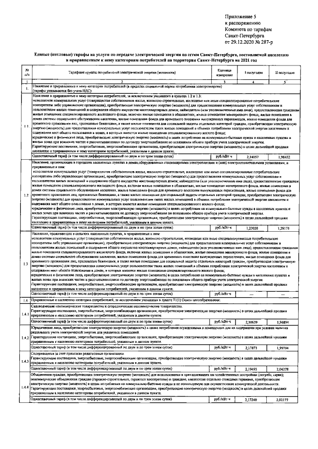
Распоряжение Комитета по тарифам Санкт-Петербурга от 29.12.2020 № 287-р
"О внесении изменений в распоряжение Комитета по тарифам Санкт-Петербурга от 30.12.2014 № 625-р
"
Номер опубликования: 7801202012310003
Дата опубликования: 31.12.2020
Страница №8 из 9:
Увеличить