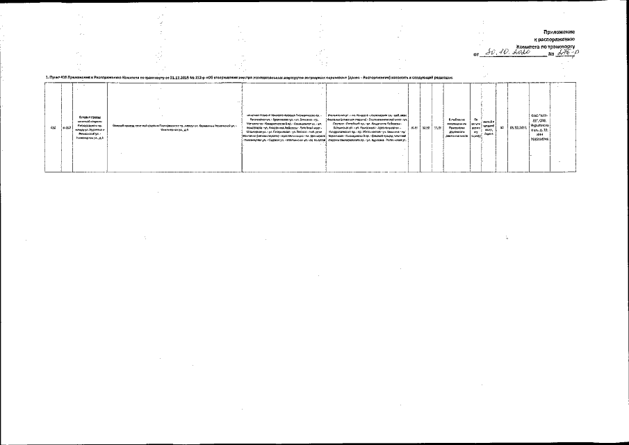
Распоряжение Комитета по транспорту Санкт-Петербурга от 30.10.2020 № 276-р
"О внесении изменений в распоряжение Комитета по транспорту от 31.12.2015 № 212-р"
"О внесении изменений в распоряжение Комитета по транспорту от 31.12.2015 № 212-р"
Номер опубликования: 7801202011020007
Дата опубликования:
02.11.2020
