Официальное опубликование правовых актов
ОФИЦИАЛЬНОЕ ОПУБЛИКОВАНИЕ
Приказ Инспекции Тульской области по государственной охране объектов культурного наследия от 23.04.2026 № 78
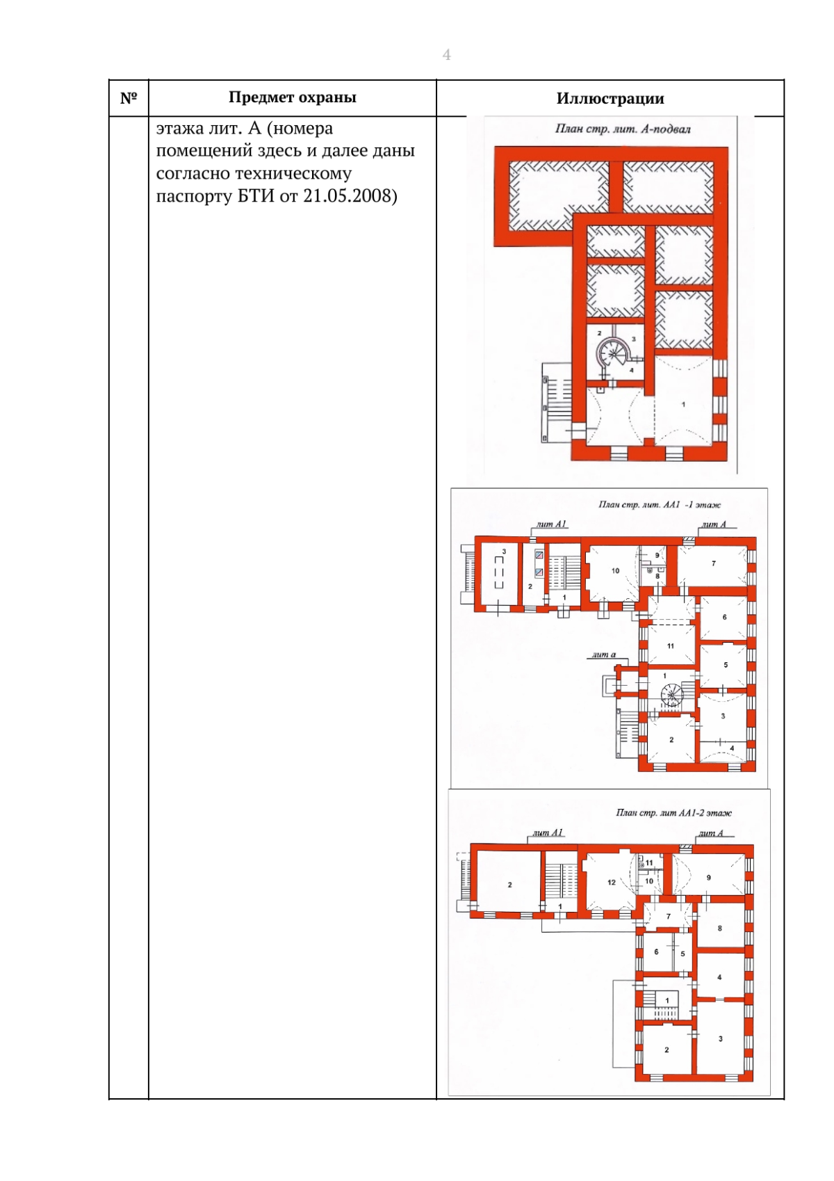
"Об утверждении предмета охраны объекта культурного наследия регионального значения "Жил. дом Т. Плахова", XVIII в., расположенного по адресу: Тульская область, г. Тула, Зареченский район, ул. Октябрьская, д. 14 лит. А, А1"
(Зарегистрирован 23.04.2026 № 78)
Номер опубликования: 7101202604240003
Дата опубликования: 24.04.2026
Страница №7 из 13:
Увеличить