Официальное опубликование правовых актов
ОФИЦИАЛЬНОЕ ОПУБЛИКОВАНИЕ
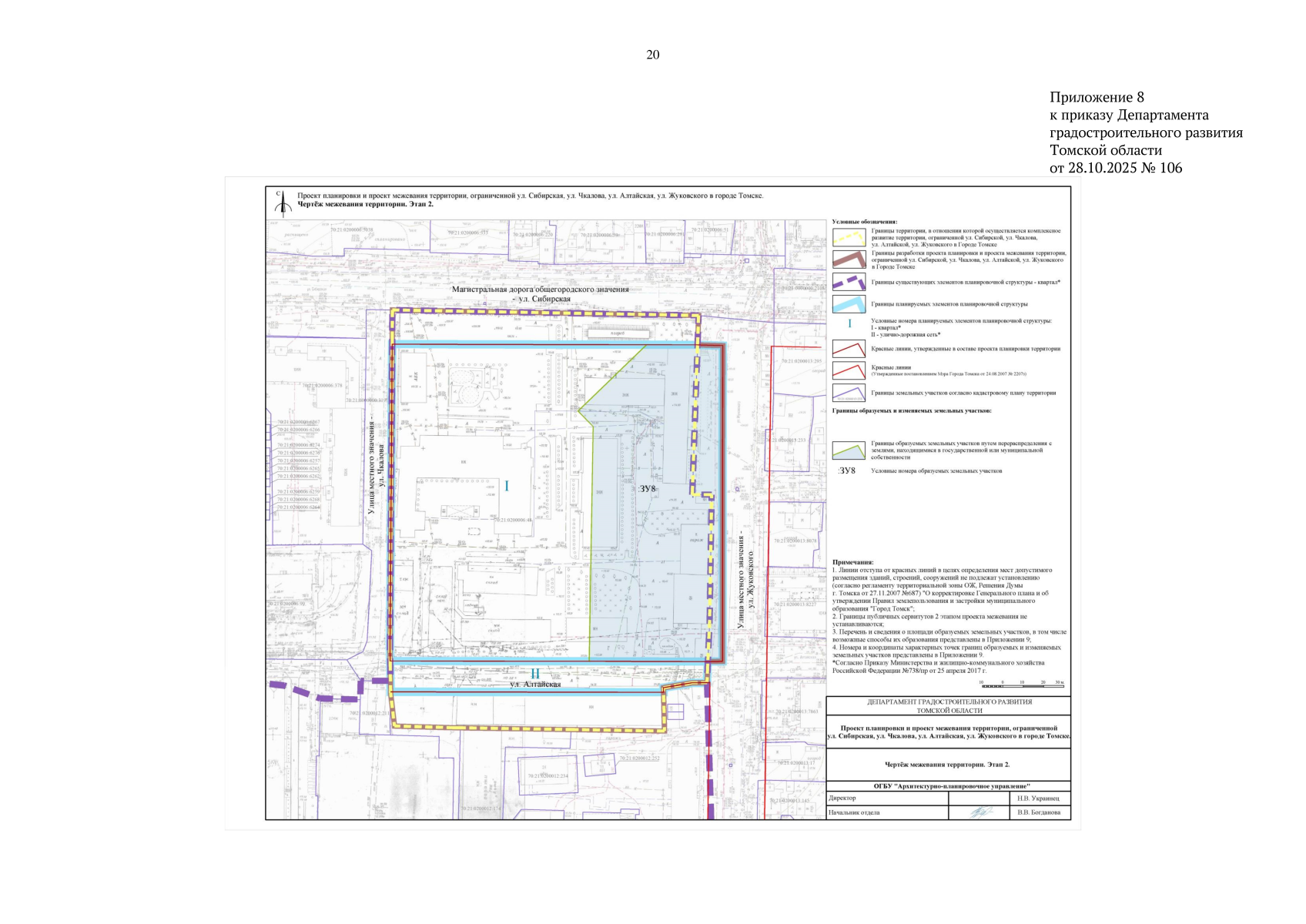
Приказ Департамента градостроительного развития Томской области от 28.10.2025 № 106
"Об утверждении проекта планировки и проекта межевания территории, ограниченной ул. Сибирской, ул. Чкалова, ул. Алтайской, ул. Жуковского в городе Томске"
(Зарегистрирован 28.10.2025 № 1243-91/2025)
Номер опубликования: 7001202510300002
Дата опубликования: 30.10.2025
Страница №20 из 30: