Приказ Комитета по охране объектов культурного наследия Томской области от 16.02.2024 № 0015/01-07
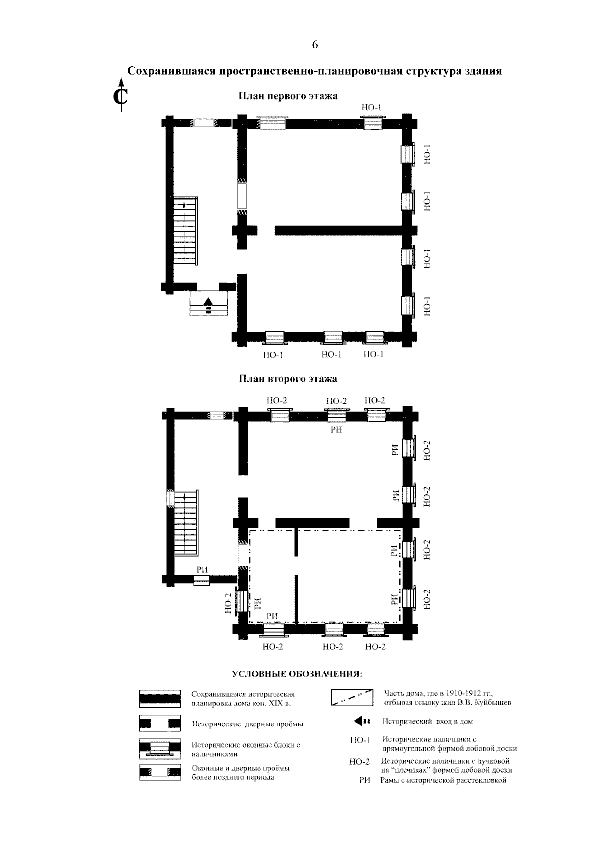
"Об утверждении предмета охраны объекта культурного наследия регионального значения "Дом, в котором жил Куйбышев В.В. в 1910-1912 годах, отбывая ссылку", по адресу: Томская область, Парабельский район, с. Нарым, ул. Куйбышева, 46"
(Зарегистрирован 16.02.2024 № 179-48/2024)
"Об утверждении предмета охраны объекта культурного наследия регионального значения "Дом, в котором жил Куйбышев В.В. в 1910-1912 годах, отбывая ссылку", по адресу: Томская область, Парабельский район, с. Нарым, ул. Куйбышева, 46"
(Зарегистрирован 16.02.2024 № 179-48/2024)
Номер опубликования: 7001202402190008
Дата опубликования:
19.02.2024
