Официальное опубликование правовых актов
ОФИЦИАЛЬНОЕ ОПУБЛИКОВАНИЕ
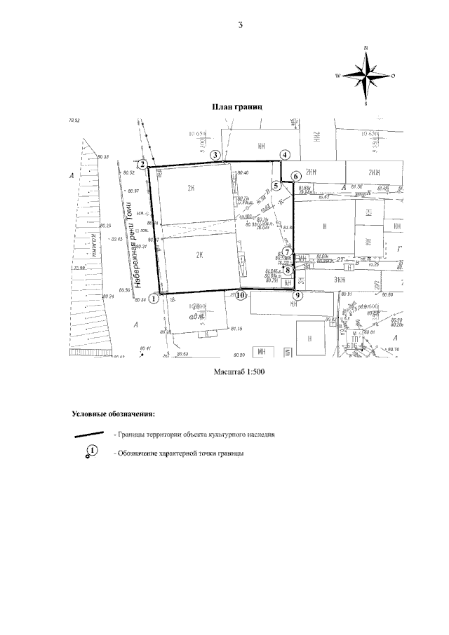
Приказ Комитета по охране объектов культурного наследия Томской области от 26.07.2023 № 0073/01-07
"Об утверждении границ территории объекта культурного наследия регионального значения "2-х этажные кирпичные склады", последняя треть ХIХ в., расположенного по адресу: г. Томск, Набережная реки Томи, 19а"
(Зарегистрирован 26.07.2023 № 737-48/2023)
Номер опубликования: 7001202307270005
Дата опубликования: 27.07.2023
Страница №3 из 4:
Увеличить