Официальное опубликование правовых актов
ОФИЦИАЛЬНОЕ ОПУБЛИКОВАНИЕ
Приказ Комитета по охране объектов культурного наследия Томской области от 28.10.2022 № 0179/01-07
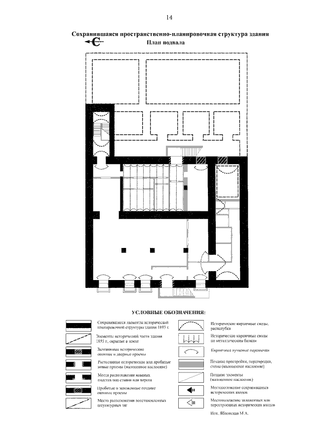
"Об утверждении предмета охраны объекта культурного наследия регионального значения "Доходный дом К. Андреева", кон. ХIХ в. (Томская область, г. Томск, ул. Обруб, 4)"
Номер опубликования: 7001202210310006
Дата опубликования: 31.10.2022
Страница №14 из 17:
Увеличить