Официальное опубликование правовых актов
ОФИЦИАЛЬНОЕ ОПУБЛИКОВАНИЕ
Приказ Комитета по охране объектов культурного наследия Томской области от 27.07.2022 № 0099/01-07
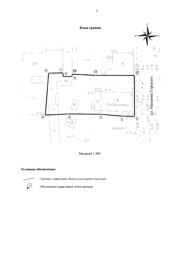
"О включении объекта культурного наследия регионального значения "Двухэтажный полукаменный дом усадьбы Я. Измайлова", кон. ХIХ - нач. ХХ вв., в единый государственный реестр объектов культурного наследия (памятников истории и культуры) народов Российской Федерации, об утверждении границ его территории и предмета охраны"
Номер опубликования: 7001202207280003
Дата опубликования: 28.07.2022
Страница №3 из 14:
Увеличить