Официальное опубликование правовых актов
ОФИЦИАЛЬНОЕ ОПУБЛИКОВАНИЕ
Приказ Комитета по охране объектов культурного наследия Томской области от 07.09.2021 № 0108/01-07
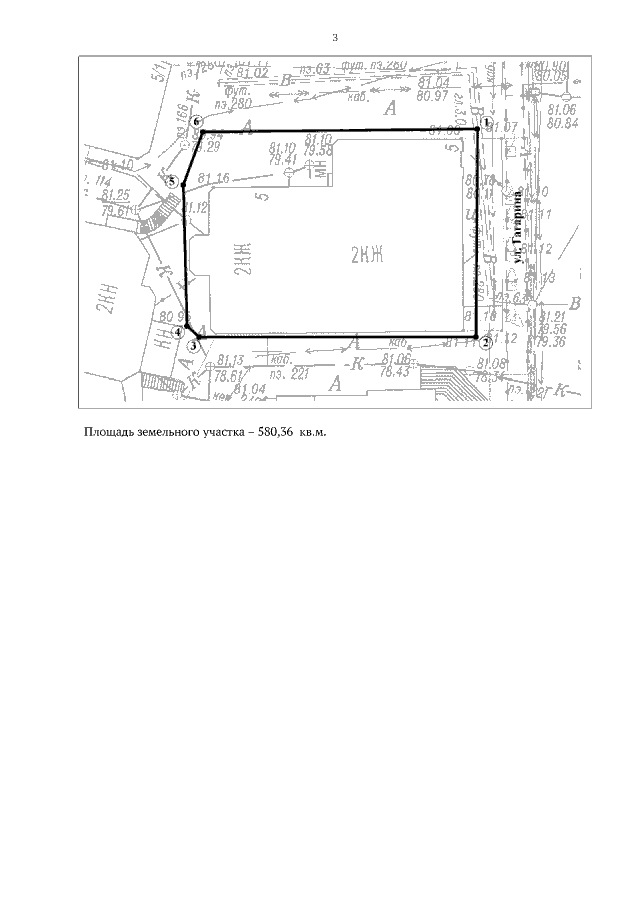
"О включении объекта культурного наследия регионального значения "Каменный жилой дом усадьбы Второва", нач. ХХ в., в единый государственный реестр объектов культурного наследия (памятников истории и культуры) народов Российской Федерации, об утверждении границ его территории и предмета охраны"
Номер опубликования: 7001202109130001
Дата опубликования: 13.09.2021
Страница №3 из 11:
Увеличить