Официальное опубликование правовых актов
ОФИЦИАЛЬНОЕ ОПУБЛИКОВАНИЕ
Приказ Комитета по охране объектов культурного наследия Томской области от 12.03.2021 № 0020/01-07
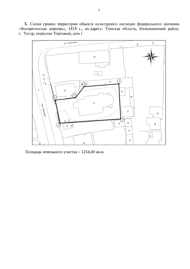
"Об утверждении границ территории объекта культурного наследия федерального значения "Воскресенская церковь", 1818 г., расположенного на территории Томской области"
Номер опубликования: 7001202103120006
Дата опубликования: 12.03.2021
Страница №3 из 3:
Увеличить