Официальное опубликование правовых актов
ОФИЦИАЛЬНОЕ ОПУБЛИКОВАНИЕ
Приказ Комитета по охране объектов культурного наследия Томской области от 24.02.2021 № 0013/01-07
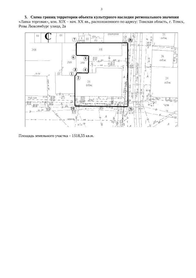
"О включении выявленного объекта культурного наследия "Лавка торговая", кон. ХIХ – нач. ХХ вв., в единый государственный реестр объектов культурного наследия (памятников истории и культуры) народов Российской Федерации в качестве объекта культурного наследия регионального значения, об утверждении границ его территории и предмета охраны"
Номер опубликования: 7001202102240001
Дата опубликования: 24.02.2021
Страница №3 из 10:
Увеличить