Официальное опубликование правовых актов
ОФИЦИАЛЬНОЕ ОПУБЛИКОВАНИЕ
Приказ Комитета по охране объектов культурного наследия Томской области от 11.12.2019 № 0135/01-07
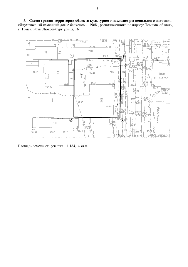
"О включении выявленного объекта культурного наследия "Двухэтажный каменный дом с балконом", 1908 г., в единый государственный реестр объектов культурного наследия (памятников истории и культуры) народов Российской Федерации в качестве объекта культурного наследия регионального значения, об утверждении его границ территории и предмета охраны"
Номер опубликования: 7001201912110006
Дата опубликования: 11.12.2019
Страница №3 из 14:
Увеличить