Официальное опубликование правовых актов
ОФИЦИАЛЬНОЕ ОПУБЛИКОВАНИЕ
Приказ Департамента тарифного регулирования Томской области от 29.08.2019 № 7-126
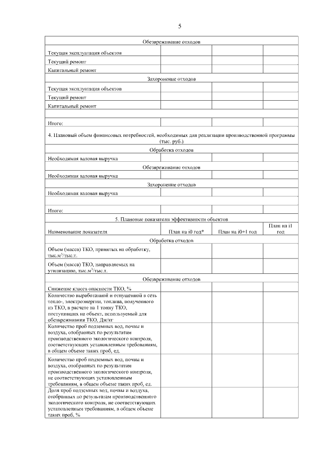
"Об утверждении Порядка и формы представления отчетности о реализации производственной программы в области обращения с твердыми коммунальными отходами регулируемыми организациями на территории Томской области"
Номер опубликования: 7001201909020005
Дата опубликования: 02.09.2019
Страница №5 из 9:
Увеличить