Официальное опубликование правовых актов
ОФИЦИАЛЬНОЕ ОПУБЛИКОВАНИЕ
Приказ Министерства строительства и развития инфраструктуры Свердловской области от 20.09.2023 № 537-П
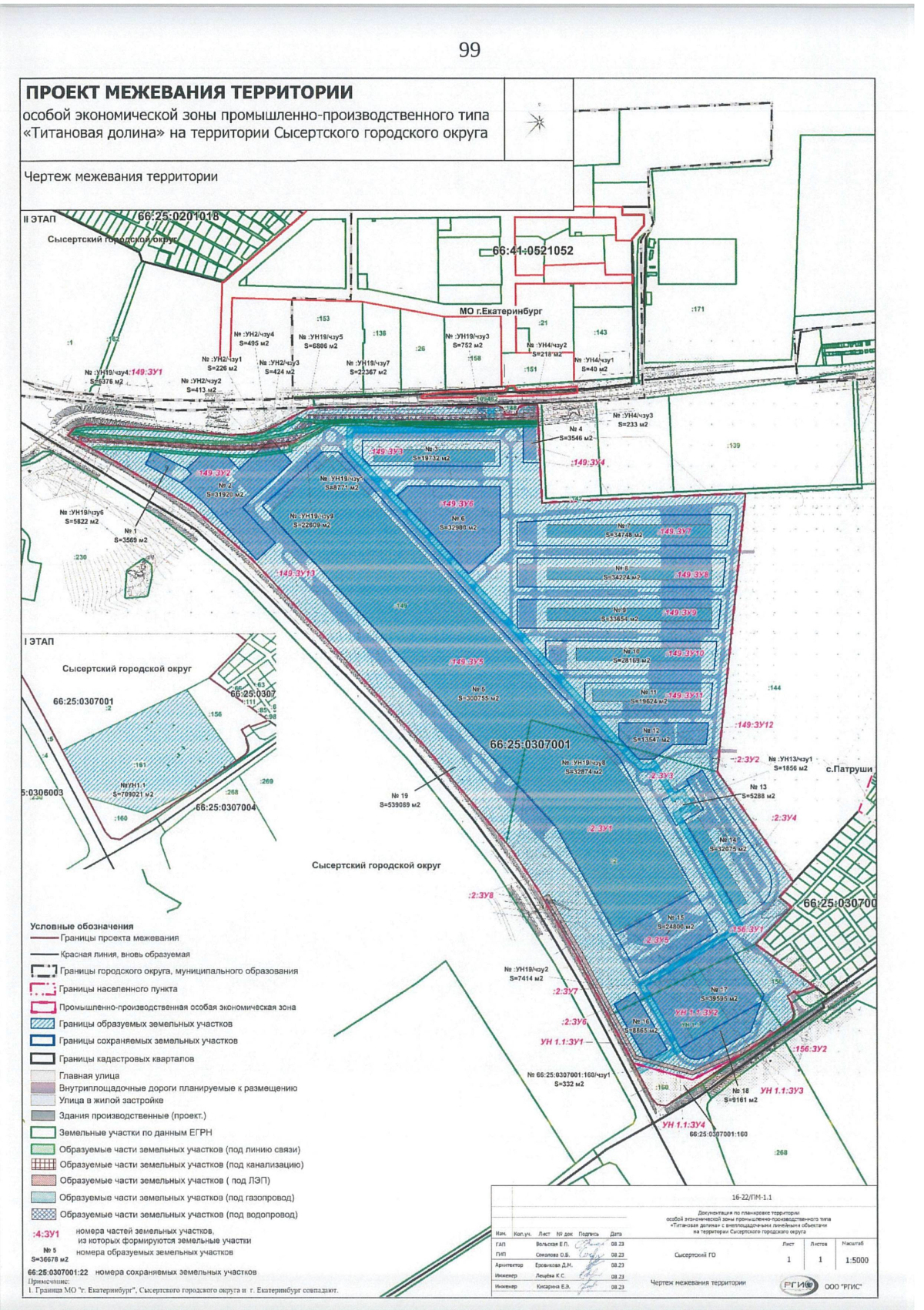
"Об утверждении основной части проекта планировки территории особой экономической зоны промышленно-производственного типа "Титановая долина" с внеплощадочными линейными объектами на территории Сысертского городского округа и основной части проекта межевания территории особой экономической зоны промышленно-производственного типа "Титановая долина" с внеплощадочными линейными объектами на территории Сысертского городского округа"
(Зарегистрирован 26.09.2023 № 679)
Номер опубликования: 6601202309260003
Дата опубликования: 26.09.2023
Страница №99 из 134:
Увеличить