Официальное опубликование правовых актов
ОФИЦИАЛЬНОЕ ОПУБЛИКОВАНИЕ
Приказ Министерства строительства и развития инфраструктуры Свердловской области от 07.09.2023 № 502-П
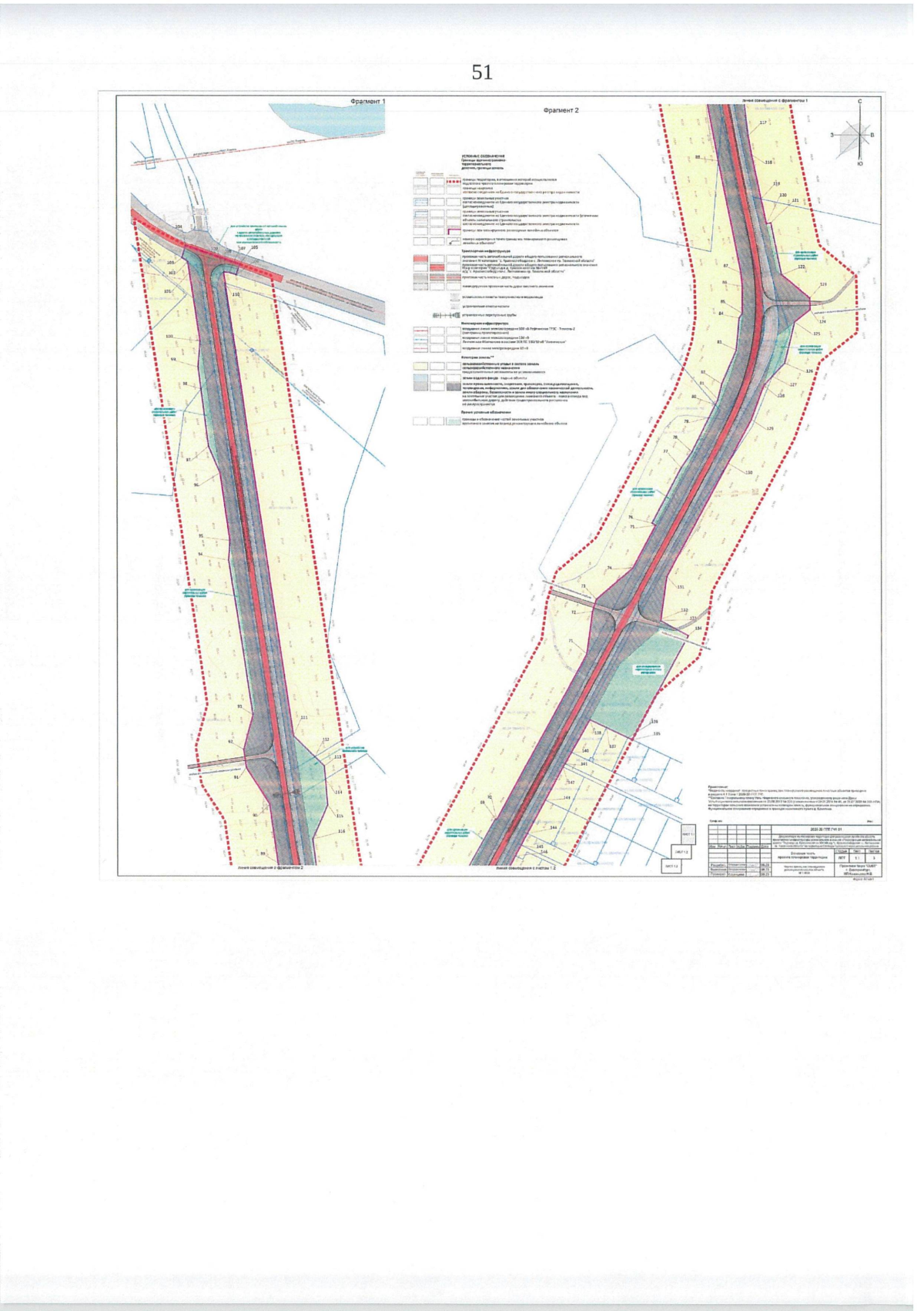
"Об утверждении основной части проекта планировки территории для размещения линейного объекта транспортной инфраструктуры регионального значения "Реконструкция автомобильной дороги "Подъезд к д. Ермолина от км 36+549 а/д "с. Краснослободское –
с. Липчинское – гр. Тюменской области" на территории Слободо-Туринского муниципального района" и основной части проекта межевания территории для размещения линейного объекта транспортной инфраструктуры регионального значения "Реконструкция автомобильной дороги "Подъезд к д. Ермолина от км 36+549 а/д "с. Краснослободское – с. Липчинское – гр. Тюменской области" на территории Слободо-Туринского муниципального района"
(Зарегистрирован 12.09.2023 № 638)
Номер опубликования: 6601202309120005
Дата опубликования: 12.09.2023
Страница №51 из 140:
Увеличить