Официальное опубликование правовых актов
ОФИЦИАЛЬНОЕ ОПУБЛИКОВАНИЕ
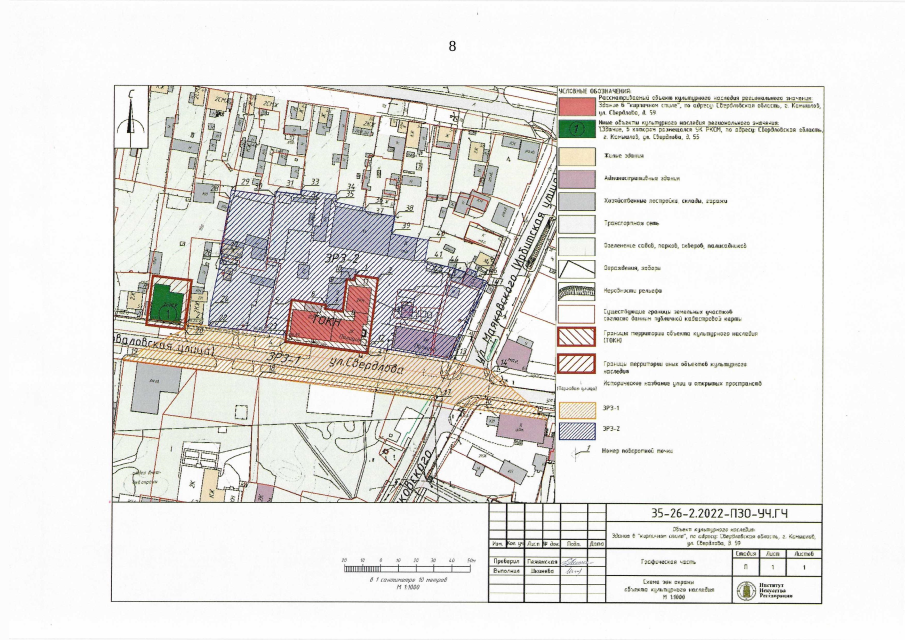
Приказ Управления государственной охраны объектов культурного наследия Свердловской области от 25.01.2023 № 47
"Об установлении зон охраны объекта культурного наследия регионального значения "Здание в "кирпичном стиле", расположенного по адресу: Свердловская область, г. Камышлов, ул. Свердлова, д. 59, и утверждении требований к градостроительным регламентам в границах данных зон"
Номер опубликования: 6601202301270003
Дата опубликования: 27.01.2023
Страница №8 из 12:
Увеличить