Официальное опубликование правовых актов
ОФИЦИАЛЬНОЕ ОПУБЛИКОВАНИЕ
Приказ Управления государственной охраны объектов культурного наследия Свердловской области от 27.10.2022 № 841
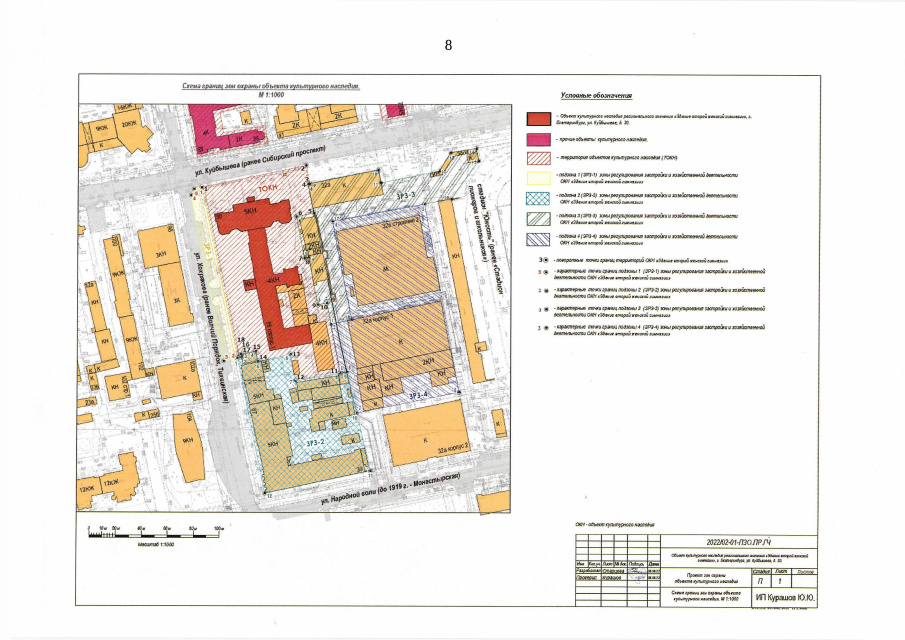
"Об установлении зон охраны объекта культурного наследия регионального значения "Здание второй женской гимназии", расположенного по адресу: Свердловская область, г. Екатеринбург, ул. Куйбышева, д. 30, и утверждении требований к градостроительным регламентам в границах данных зон"
Номер опубликования: 6601202210270002
Дата опубликования: 27.10.2022
Страница №8 из 12:
Увеличить