Официальное опубликование правовых актов
ОФИЦИАЛЬНОЕ ОПУБЛИКОВАНИЕ
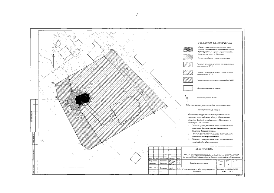
Приказ Управления государственной охраны объектов культурного наследия Свердловской области от 19.08.2022 № 560
"Об установлении зон охраны объекта культурного наследия регионального значения "Ансамбль" и входящих в его состав объектов культурного наследия регионального значения "Часовня во имя Святого Праведника Симеона Верхотурского", "Подпорная стена" и "Ограда", расположенных по адресу: Свердловская область, Верхотурский район, с. Меркушино, ул. Центральная, д. 9е, и утверждении требований к градостроительным регламентам в границах данных зон"
Номер опубликования: 6601202208230001
Дата опубликования: 23.08.2022
Страница №7 из 11:
Увеличить