Официальное опубликование правовых актов
ОФИЦИАЛЬНОЕ ОПУБЛИКОВАНИЕ
Приказ Управления государственной охраны объектов культурного наследия Свердловской области от 08.07.2022 № 443
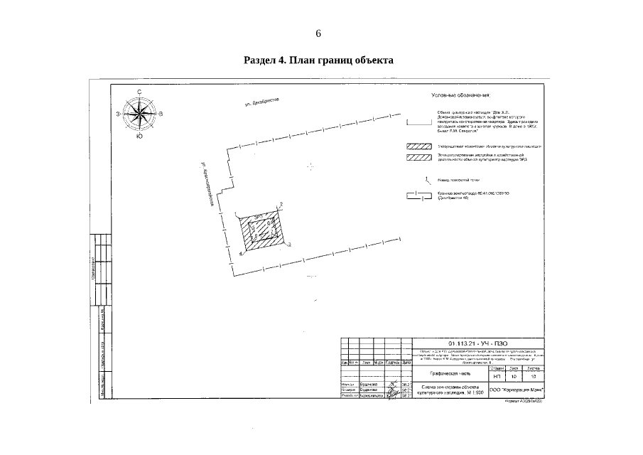
"Об установлении зон охраны объекта культурного наследия регионального значения "Дом Х.П. Долгановой-Клементьевой, во флигеле которого в 1904 г. находилась конспиративная квартира. Здесь проходили заседания комитета и занятия кружков. В доме в 1905 г. бывал Я.М. Свердлов", расположенного по адресу: Свердловская область, г. Екатеринбург, ул. Красноармейская, д. 81, и утверждении требований к градостроительным регламентам в границах данных зон"
Номер опубликования: 6601202207120007
Дата опубликования: 12.07.2022
Страница №6 из 8:
Увеличить