Официальное опубликование правовых актов
ОФИЦИАЛЬНОЕ ОПУБЛИКОВАНИЕ
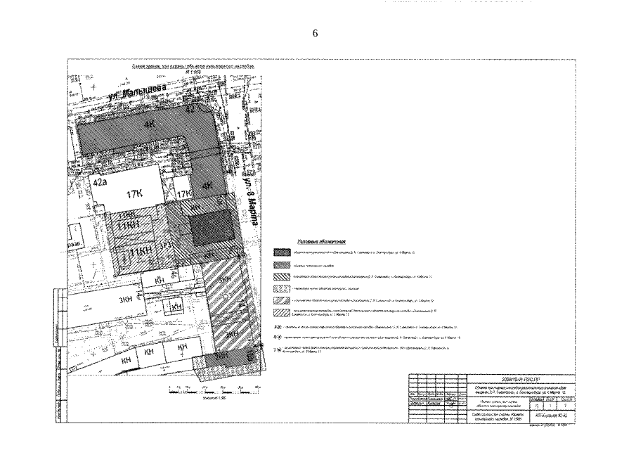
Приказ Управления государственной охраны объектов культурного наследия Свердловской области от 04.02.2022 № 33
"Об установлении зон охраны объекта культурного наследия регионального значения "Дом мещанки Д.Я. Симановой", расположенного по адресу: Свердловская область, г. Екатеринбург, ул. 8 Марта, д. 12, и утверждении требований к градостроительным регламентам в границах данных зон"
Номер опубликования: 6601202202110003
Дата опубликования: 11.02.2022
Страница №6 из 9:
Увеличить