Официальное опубликование правовых актов
ОФИЦИАЛЬНОЕ ОПУБЛИКОВАНИЕ
Указ Губернатора Свердловской области от 19.04.2018 № 200-УГ
"Об утверждении схемы и программы развития электроэнергетики Свердловской области на период 2019–2023 годов"
Номер опубликования: 6600201804250015
Дата опубликования: 25.04.2018
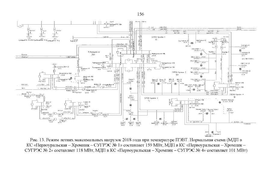
Страница №156 из 170:
Увеличить