Официальное опубликование правовых актов
ОФИЦИАЛЬНОЕ ОПУБЛИКОВАНИЕ
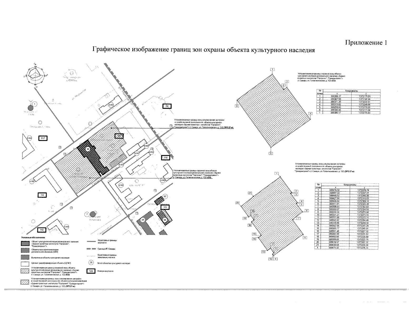
Приказ Управления государственной охраны объектов культурного наследия Самарской области от 29.10.2024 № 266
"Об утверждении границ зон охраны объекта культурного наследия регионального значения "Здание проектных институтов "Горпроект", "Гражданпроект", расположенного по адресу: г. Самара, ул. Галактионовская, д. 132, режимов использования земель и требований к градостроительным регламентам в границах данных зон"
(Зарегистрирован 29.10.2024 № УГООКН 24266)
Номер опубликования: 6301202410300009
Дата опубликования: 30.10.2024
Страница №12 из 12:
Увеличить