Официальное опубликование правовых актов
ОФИЦИАЛЬНОЕ ОПУБЛИКОВАНИЕ
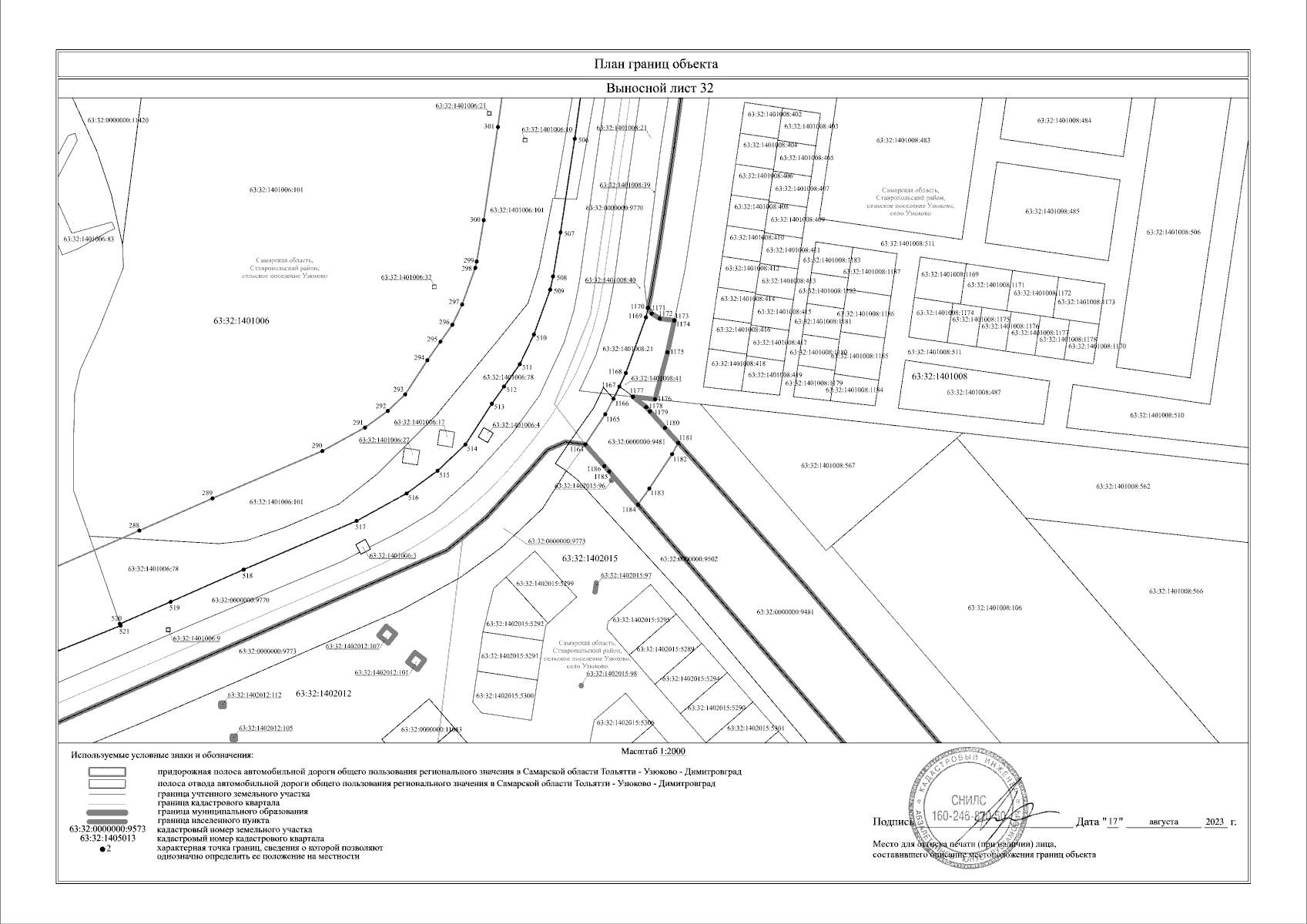
Приказ Министерства транспорта и автомобильных дорог Самарской области от 11.12.2023 № 393
"Об установлении зоны с особыми условиями использования территории – придорожной полосы автомобильной дороги общего пользования регионального значения в Самарской области Тольятти – Узюково – Димитровград, расположенной в муниципальном районе Ставропольский Самарской области"
(Зарегистрирован 11.12.2023 № VN-23/393)
Номер опубликования: 6301202312120004
Дата опубликования: 12.12.2023
Страница №47 из 176:
Увеличить