Официальное опубликование правовых актов
ОФИЦИАЛЬНОЕ ОПУБЛИКОВАНИЕ
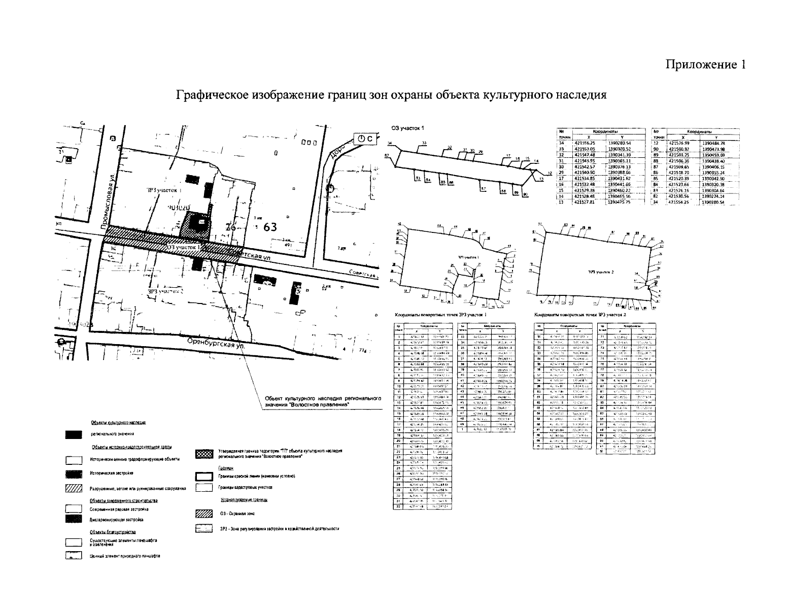
Приказ Управления государственной охраны объектов культурного наследия Самарской области от 12.10.2023 № 384
"Об утверждении границ зон охраны объекта культурного наследия регионального значения "Волостное правление", расположенного по адресу: Красноярский район, с. Красный Яр, ул. Советская, 22, режимов использования земель и требований к градостроительным регламентам в границах данных зон"
(Зарегистрирован 12.10.2023 № УГООКН 23384)
Номер опубликования: 6301202310170008
Дата опубликования: 17.10.2023
Страница №17 из 17:
Увеличить