Официальное опубликование правовых актов
ОФИЦИАЛЬНОЕ ОПУБЛИКОВАНИЕ
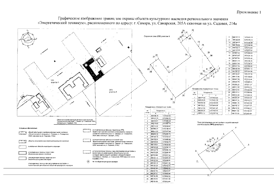
Приказ Управления государственной охраны объектов культурного наследия Самарской области от 07.07.2023 № 215
"Об утверждении границ зон охраны объекта культурного наследия регионального значения "Энергетический техникум", расположенного по адресу: г. Самара, ул. Самарская, 205А сквозная на ул. Садовая, 214а, режимов использования земель и требований к градостроительным регламентам в границах данных зон"
(Зарегистрирован 07.07.2023 № УГООКН 23215)
Номер опубликования: 6301202307100012
Дата опубликования: 10.07.2023
Страница №14 из 14:
Увеличить