Официальное опубликование правовых актов
ОФИЦИАЛЬНОЕ ОПУБЛИКОВАНИЕ
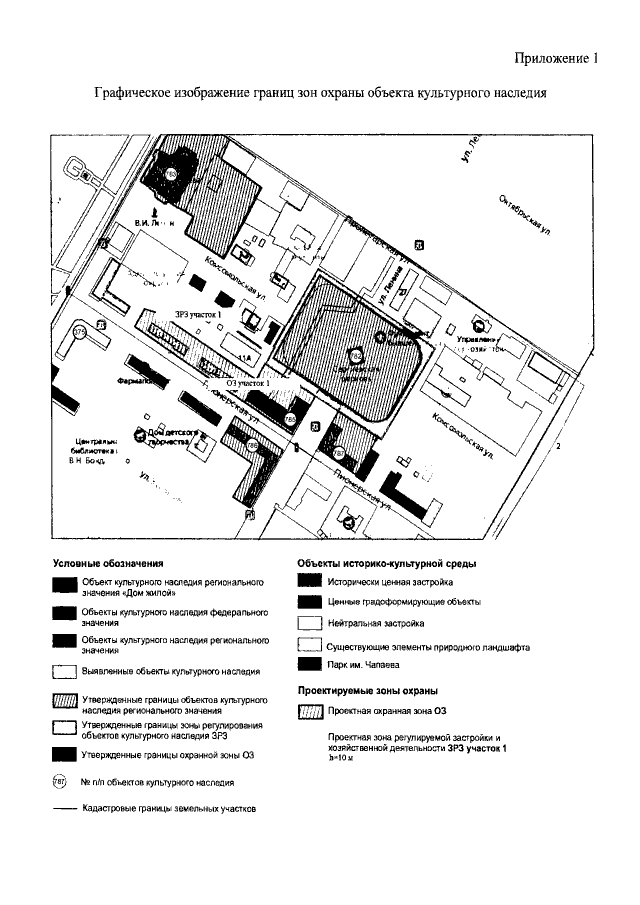
Приказ Управления государственной охраны объектов культурного наследия Самарской области от 07.09.2022 № 236
"Об утверждении границ зон охраны объекта культурного наследия регионального значения "Дом жилой", расположенного по адресу: Самарская область, г. Чапаевск, ул. Ленина, 28/ Пионерская, 6, режимов использования земель и требований к градостроительным регламентам в границах данных зон"
Номер опубликования: 6301202209090001
Дата опубликования: 09.09.2022
Страница №19 из 19:
Увеличить