Официальное опубликование правовых актов
ОФИЦИАЛЬНОЕ ОПУБЛИКОВАНИЕ
Приказ Управления государственной охраны объектов культурного наследия Самарской области от 02.08.2022 № 187
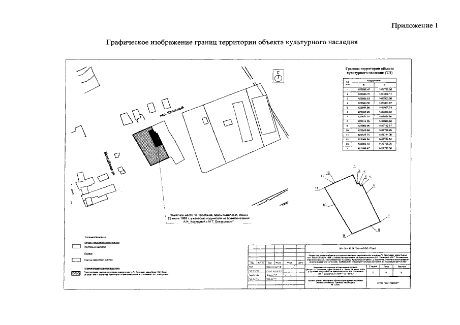
"Об утверждении границ территории и зон охраны объекта культурного наследия регионального значения "С. Тростянка, здесь бывал В.И. Ленин 28 июля 1889 г. в качестве поручителя на бракосочетании сестры А.И. Ульяновой с М.Т. Елизаровым (памятное место)", расположенного по адресу: Самарская область, Красноярский район, с. Тростянка, режимов использования земель и требований к градостроительным регламентам в границах данных зон"
Номер опубликования: 6301202208040007
Дата опубликования: 04.08.2022
Страница №17 из 18:
Увеличить