Приказ Управления государственной охраны объектов культурного наследия Самарской области от 24.12.2021 № 262
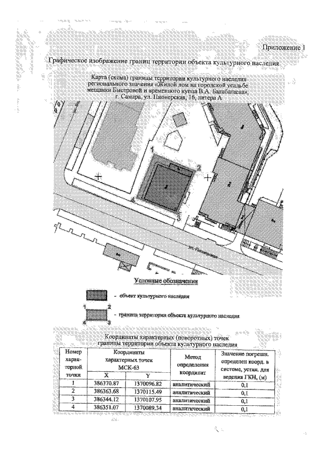
"Об утверждении границ территории объекта культурного наследия регионального значения "Жилой дом на городской усадьбе мещанки Быстровой и временного купца В.А. Балабашева", расположенного по адресу: Самарская область, г. Самара, ул. Пионерская, д. 16, литера А, режимов использования земельных участков в границах данной территории"
"Об утверждении границ территории объекта культурного наследия регионального значения "Жилой дом на городской усадьбе мещанки Быстровой и временного купца В.А. Балабашева", расположенного по адресу: Самарская область, г. Самара, ул. Пионерская, д. 16, литера А, режимов использования земельных участков в границах данной территории"
Номер опубликования: 6301202112270006
Дата опубликования:
27.12.2021
