Постановление Главного управления архитектуры и градостроительства Рязанской области от 19.08.2020 № 518-п
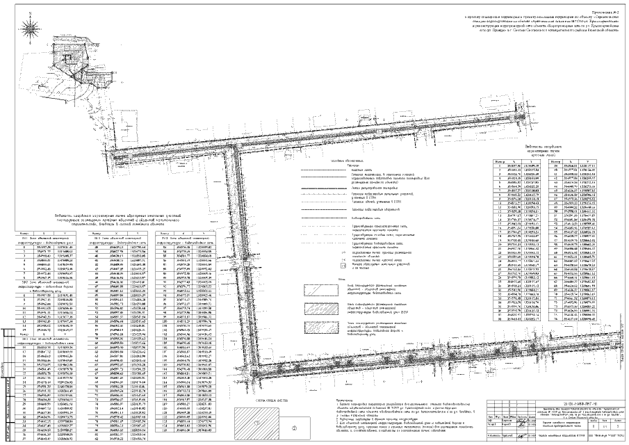
"Об утверждении проекта планировки территории и проекта межевания территории по объекту: "Строительство станции водоподготовки на объекте "Артезианская скважина №71259 ул. Красноармейская" и реконструкция водопроводной сети объекта "Водопроводная сеть по ул. Красноармейская и по ул. Правды" в г. Скопин Скопинского муниципального района Рязанской области"
"Об утверждении проекта планировки территории и проекта межевания территории по объекту: "Строительство станции водоподготовки на объекте "Артезианская скважина №71259 ул. Красноармейская" и реконструкция водопроводной сети объекта "Водопроводная сеть по ул. Красноармейская и по ул. Правды" в г. Скопин Скопинского муниципального района Рязанской области"
Номер опубликования: 6201202008200036
Дата опубликования:
20.08.2020
