Официальное опубликование правовых актов
ОФИЦИАЛЬНОЕ ОПУБЛИКОВАНИЕ
Постановление Комитета по охране объектов культурного наследия Ростовской области от 29.12.2025 № 2838
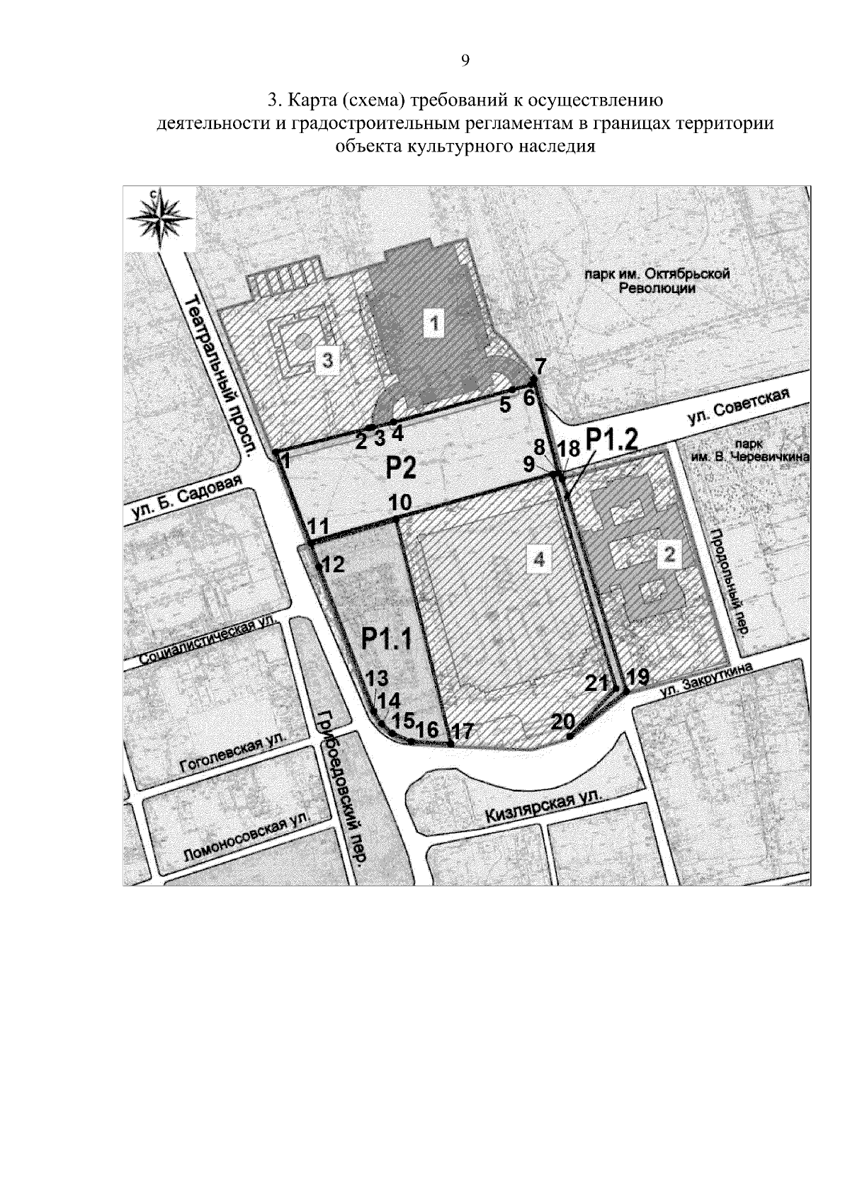
"Об установлении требований к осуществлению деятельности и градостроительным регламентам в границах территории объекта культурного наследия регионального значения (достопримечательного места) "Театральная площадь" по адресу: Ростовская область, г. Ростов-на-Дону, между пр. Театральным, ул. Закруткина, пер. Продольным и парком им. Октябрьской Революции"
(Зарегистрирован 29.12.2025 № 2838)
Номер опубликования: 6101202512300029
Дата опубликования: 30.12.2025
Страница №9 из 11:
Увеличить