Официальное опубликование правовых актов
ОФИЦИАЛЬНОЕ ОПУБЛИКОВАНИЕ
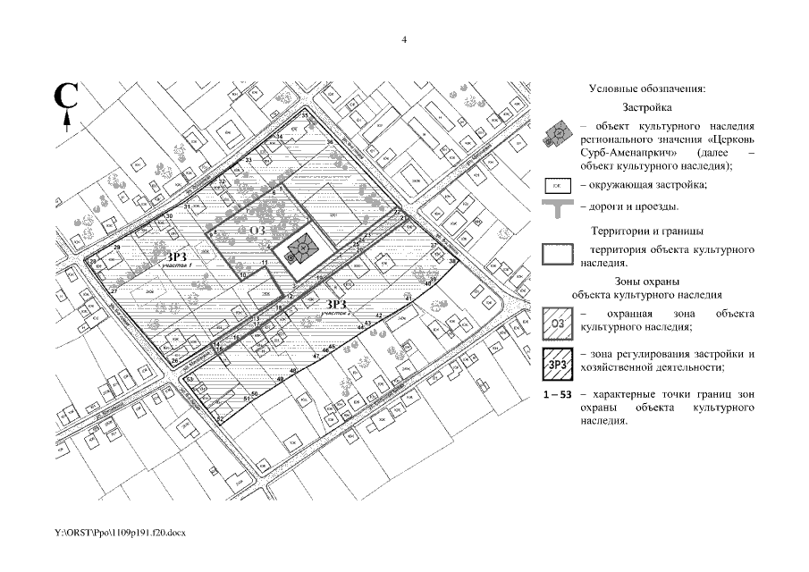
Постановление Правительства Ростовской области от 09.11.2020 № 191
"Об установлении зон охраны объекта культурного наследия регионального значения "Церковь Сурб-Аменапркич" и утверждении требований к градостроительным регламентам в границах территорий данных зон"
Номер опубликования: 6100202011110031
Дата опубликования: 11.11.2020
Страница №4 из 10:
Увеличить