Официальное опубликование правовых актов
ОФИЦИАЛЬНОЕ ОПУБЛИКОВАНИЕ
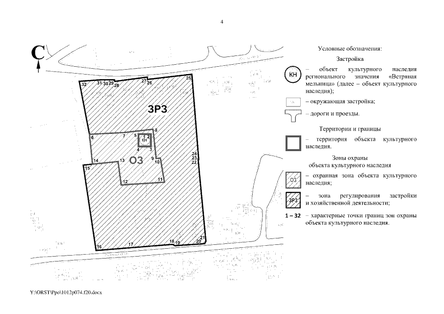
Постановление Правительства Ростовской области от 12.10.2020 № 74
"Об установлении зон охраны объекта культурного наследия регионального значения "Ветряная мельница" и утверждении требований к градостроительным регламентам в границах территорий данных зон"
Номер опубликования: 6100202010140011
Дата опубликования: 14.10.2020
Страница №4 из 8:
Увеличить