Официальное опубликование правовых актов
ОФИЦИАЛЬНОЕ ОПУБЛИКОВАНИЕ
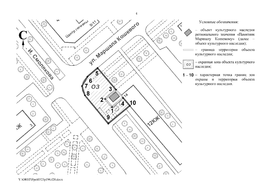
Постановление Правительства Ростовской области от 23.03.2020 № 196
"Об установлении зон охраны объекта культурного наследия регионального значения "Памятник Маршалу Кошевому" и утверждении требований к градостроительным регламентам в границах территорий данных зон"
Номер опубликования: 6100202003260014
Дата опубликования: 26.03.2020
Страница №4 из 6:
Увеличить