Постановление Правительства Ростовской области от 10.03.2020 № 121
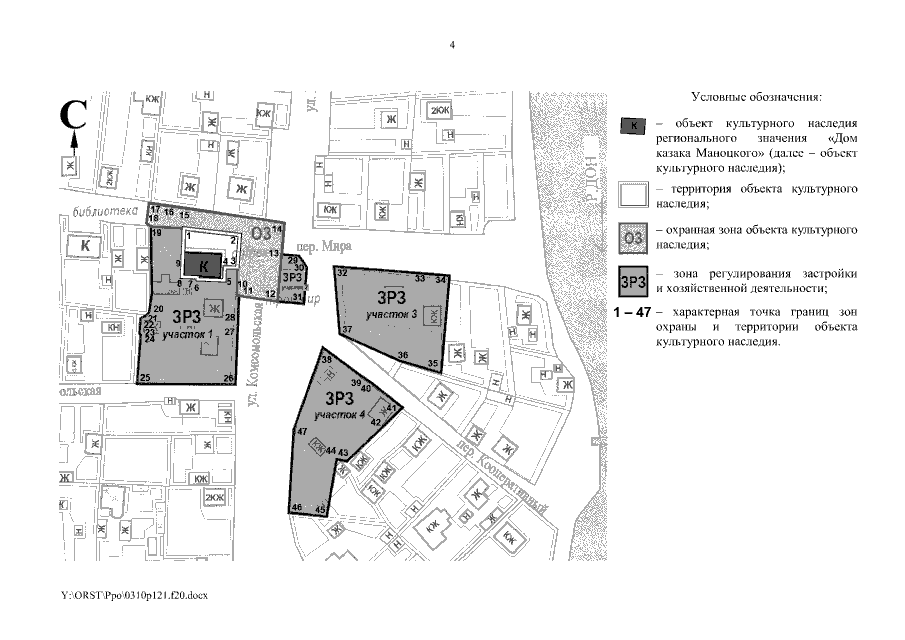
"Об установлении зон охраны объекта культурного наследия регионального значения "Дом казака Маноцкого" и утверждении требований к градостроительным регламентам в границах территорий данных зон"
"Об установлении зон охраны объекта культурного наследия регионального значения "Дом казака Маноцкого" и утверждении требований к градостроительным регламентам в границах территорий данных зон"
Номер опубликования: 6100202003120027
Дата опубликования:
12.03.2020
