Официальное опубликование правовых актов
ОФИЦИАЛЬНОЕ ОПУБЛИКОВАНИЕ
Постановление Правительства Ростовской области от 10.03.2020 № 119
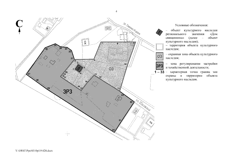
"Об установлении зон охраны объекта культурного наследия регионального значения "Дом священника" и утверждении требований к градостроительным регламентам в границах территорий данных зон"
Номер опубликования: 6100202003120019
Дата опубликования: 12.03.2020
Страница №4 из 11:
Увеличить