Официальное опубликование правовых актов
ОФИЦИАЛЬНОЕ ОПУБЛИКОВАНИЕ
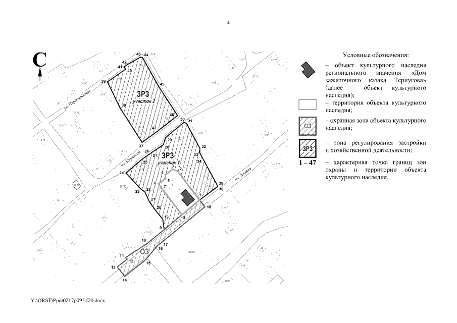
Постановление Правительства Ростовской области от 17.02.2020 № 93
"Об установлении зон охраны объекта культурного наследия регионального значения "Дом зажиточного казака Терпугова" и утверждении требований к градостроительным регламентам в границах территорий данных зон"
Номер опубликования: 6100202002190013
Дата опубликования: 19.02.2020
Страница №4 из 10:
Увеличить