Официальное опубликование правовых актов
ОФИЦИАЛЬНОЕ ОПУБЛИКОВАНИЕ
Постановление Правительства Ростовской области от 10.02.2020 № 77
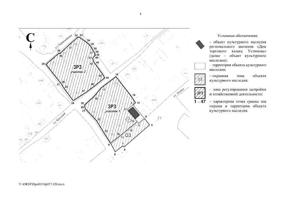
"Об установлении зон охраны объекта культурного наследия регионального значения "Дом торгового казака Устинова" и утверждении требований к градостроительным регламентам в границах территорий данных зон"
Номер опубликования: 6100202002120002
Дата опубликования: 12.02.2020
Страница №4 из 10:
Увеличить