Постановление Правительства Ростовской области от 30.12.2019 № 1014
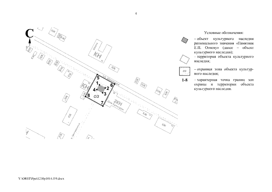
"Об установлении зон охраны объекта культурного наследия регионального значения "Памятник Е.П. Огневу" и утверждении требований к градостроительным регламентам в границах территорий данных зон"
"Об установлении зон охраны объекта культурного наследия регионального значения "Памятник Е.П. Огневу" и утверждении требований к градостроительным регламентам в границах территорий данных зон"
Номер опубликования: 6100201912310033
Дата опубликования:
31.12.2019
