Официальное опубликование правовых актов
ОФИЦИАЛЬНОЕ ОПУБЛИКОВАНИЕ
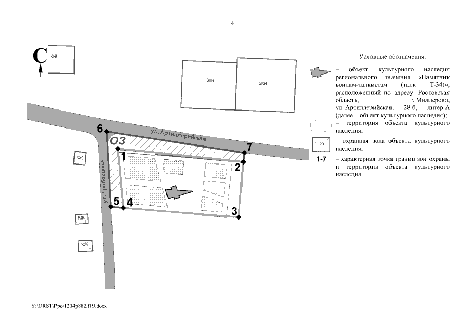
Постановление Правительства Ростовской области от 04.12.2019 № 882
"Об установлении зон охраны объекта культурного наследия регионального значения "Памятник воинам-танкистам (танк Т-34)" и утверждении требований к градостроительным регламентам в границах территорий данных зон"
Номер опубликования: 6100201912060020
Дата опубликования: 06.12.2019
Страница №4 из 6:
Увеличить